Lodging@Room-Sweet-Room.com

Trail's End Suite

At the end of a dusty trail, there's no better place to lay your head after a day's travel.

  • 24/7/365 WiFi
  • Flat Screen TV
  • Queen Size Bed
  • Shower
  • Iron & Ironing Board
  • Non-Smoking

Overview

Available Winter 2021

At the end of your days in Acton or Agua Dulce, there's no better place to lay your head than in the comfort of the 308 square foot Trail's End ensuite! The suite is fully furnished and features common area privileges, many amenities, and all utilities as listed below, except landline and/or cell phone service.

Renting Dancing Coyote Farm's Trail's End Suite is ideal for all types of travelers, including: tourists, city-break weekenders, travelers visiting family & friends in Acton and Agua Dulce that need extra rooms, traveling nurses, interns and other medical and business professionals. Trail's End is very comfortable, well-furnished and full of amenities, and best of all... priced to fit just about anybody's budget!

GUESTS. Sleeps 2.

HOME STYLE. Rustic-style, custom-built farmhouse is situated on four acres in a beautiful rural, country setting. This private, retreat-like home features very comfortable furniture, high-end appliances, fixtures, and amenities. Located 1/2-mile off paved road on well-maintained dirt road.

VIEW TYPE. Panoramic mountain views; Property located in the low Sierra foothills, high desert region of the Antelope Valley in Southern California.

MEALS. Dancing Coyote Farm is not a Bed & Breakfast; no food, meals, or beverages available (except as noted).

COMMON AREAS. All nightly, short and long term Guests will enjoy use of the home's common areas listed below

  • Great room for relaxing, reading, conversation, and watching TV.
  • Cozy wood burning stove.
  • Curated coffee table books and bookcase containing popular fiction novels.
  • Family-style, sit-down dining area.
  • Eat at lunch counter.
  • Coffee bar with coffee maker, electric kettle, sink & wine frig.
  • Board games and cards.
  • Covered deck with tables, chairs, and chaise lounges.
  • 4-acre property to explore and amble around in for exercise.

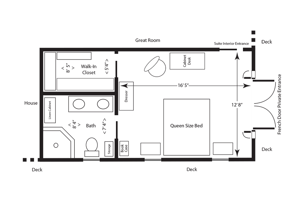
SUITE FEATURES. The 308 square foot, self-contained Trail's End Suite is fully furnished and includes the following amenities

  • Private, double French door exterior entrance to suite from wrap-around deck. Access also available via home's front door with interior, locking door to suite.
  • Large walk-in closet; hangers
  • 3-piece bathroom with heated floor
  • Queen-size 4-poster bed, 2 nightstands, 2 lamps
  • Dresser with mirror
  • Sitting area with easy chair and lamp
  • Working desk with reading lamp
  • Bookcase
  • Large ceiling fan
  • Flat screen TV with satellite service
  • USB multi-device charging station
  • 24/7/365 4G wifi access
  • Clock/Radio
  • Hairdryer
  • Central heat and air-conditioning
  • Suite has large ceiling fan
  • Fire/smoke detector in suite; whole home house sprinkler system; fire extinguisher
  • In-suite attic storage
  • Afghan throws
  • Bed linens, bed pillows, and blankets included
  • Wash cloths, hand towels and bath towels included

2-Night to 7-Night Stays
Amenities Included in Rental Fee

  • Use of the self-prep coffee & beverages bar in kitchen.
  • An assortment of pod-packaged coffees, teas, sugar, artificial sweeteners and non-dairy creamers available at no additional charge.
  • Refrigerator cold (filtered) water dispenser and ice cubes available.
  • Wine cooler available to cool/keep your wine or sodas during your stay; wine and beverage glasses available for use.
  • Kitchen microwave for heating up snacks.
  • Iron and ironing board available.
  • Uncovered outdoor parking, 1 space.
Laundry Facilities, including detergent and dryer sheets. Available at a small extra charge per load.

13-Week Contract and Month-to-Month Stays
Amenities Included in Rental Fee

  • Full use of the Chef's kitchen.
  • Kitchen cooking utensils and pots, dishes, flatware, and more.
  • Use of 6-burner cooktop, double ovens, warming drawer, sink, microwave.
  • Refrigerator filtered cold water dispenser and ice cubes.
  • Personal dry goods storage cabinet in kitchen.
  • Personal storage in Refrigerator - keeping and freezer areas.
  • Laundry facilities: washer & dryer (detergent, etc. not included).
  • Iron and ironing board available.
  • Uncovered outdoor parking, 1 space.

Room Prices*

2-Night Minimum for 2 Guests from $100 per Night
2-Night Minimum for 1 Guest from $62 per Night
SPECIAL! 5-Nights for 2 Guests from $425.00 (Save $75.00!)
SPECIAL! 5-Nights for 1 Guest Ask for Price
SPECIAL! 7-Nights for 2 Guests from $600.00 (Save $100.00!)
SPECIAL! 7-Nights for 1 Guest Ask for Price
Month-to-Month Rentals
Couples Okay
from $995.00 per Month ALL INCLUSIVE*
2nd person additional cost from $175/per mo.
Security Deposit Required: $900.00
Rental Application & Credit Report Required
13-Week Contract Rentals
Flat Rate
Couples Okay
from $2,733.00 ALL INCLUSIVE* (Save $500.00!)
2nd person additional flat cost of $400
Security Deposit Required: $900.00
Rental Application & Credit Report Required

Maximum Stay. 365 nights.

*LA County Transient Occupancy Tax (TOT). For stays from 2-nights to 29-nights. IF THIS ROOM IS BOOKED using a online company hosting platform [i.e., VRBO, AirBnB, FlipKey, OneFineStay, HomeStay, et al] all prices are plus the 12% required Los Angeles County Transient Occupancy Tax. 13-week Contract Rentals and Month-to-Month Rentals are exempt from the TOT.


THINGS TO KNOW

Driving Distances from Dancing Coyote Farm

  • 1.25 miles to easy on/off Antelope Valley Freeway (14) access
  • 5.75 miles to Acton, CA
  • 9 miles to Agua Dulce, CA
  • 16 miles to Palmdale, CA
  • 24 miles to Lancaster, CA
  • 18 miles to Santa Clarita, CA
  • 26 miles to Magic Mtn. Park
  • 29 miles to San Fernando Valley, CA
  • 42 miles to Downtown L.A., CA

General House Rules

HOUSE RULES for guest stays from 2 to 10 nights. Reservation must be made and entered into by Occupant of 25 years or older with valid driver's license with photo ID and/or valid Passport and valid credit card. Full Terms & Conditions supplied upon booking confirmation, deposit and acceptance of the Guest Stay Booking Confirmation/Stay Agreement contract.

  • Check-in: After 4:00 pm
  • Check-out: By 10:00 am
  • No parties or events
  • No smoking/vaping of any type
  • No drugs of any type
  • No pets*
  • CANCELLATION POLICY
  • Cancel up to 30 days before day of check-in, get a 75% refund
  • Cancel before 4:00 pm on day of check-in, get a 25% refund

HOUSE RULES for Month-to-Month and 13-Week Rental Contracts. Rental must be made and entered into by Occupant of 25 years or older with valid driver's license with photo ID and/or valid Passport, valid credit card, and proof of full time employment. Full Terms & Conditions supplied upon rental confirmation, deposit and acceptance of the Guest Stay Rental Confirmation/Rental Agreement contract.

  • Rental Start: On agreed day; Move in time: Between 8:00am to 6:00pm
  • Rental End: On agreed day; Move out time: Between 8:00am to 6:00pm
  • No parties or events
  • No smoking/vaping of any type
  • No drugs of any type
  • No pets*
  • Security deposits required
  • Credit report required

UTILITIES Included in rental fare: electricity, water, propane, wifi, satellite TV (select channels).
Not included. Telephone land line service and mobile/cellular service. Pay per view movies, specialty channels [i.e., HBO, STARZ, ESPN et al], and streaming services [i.e., NetFlix et al] are at an additional cost and available based on service being able to be provided by 3rd party supplier/s.

PETS* Guests may not bring pets of any any type. Dancing Coyote Farm has pets which include dogs and cats that have the run of the common areas – but not the guest rooms. ALERT: If you are allergic to dogs and/or cats the Farm may not be the best choice for a guest stay.


Reviews

Leave a Review
No reviews yet.

Check Availability & Booking Form

General Amenities

  • Free Wifi
  • Plasma TV
  • USB Charging Hubs
  •   Kitchen Beverage Bar
  • Deck for Lounging
  •   Kitchen Facilities*
  •   Laundry Facilities*
  • Parking

*Full use of Chef's Kitchen and Laundry Facilities included in month-to-month and 13-week contract rentals.

Restrictions

  • No Wheelchair Access
  • No Pets
  • No Smoking Property
  •    No Drugs Property
  •  No Parties or Events
  • See full House Rules

Need info? Email us!

lodging@room-sweet-room.com

CONTACT US
Monday to Friday 10:00am - 5:00pm
Saturday 10:00am to 2:30pm
Sunday Closed